T. 618 854 500
estudio@lmvarkitektura.com
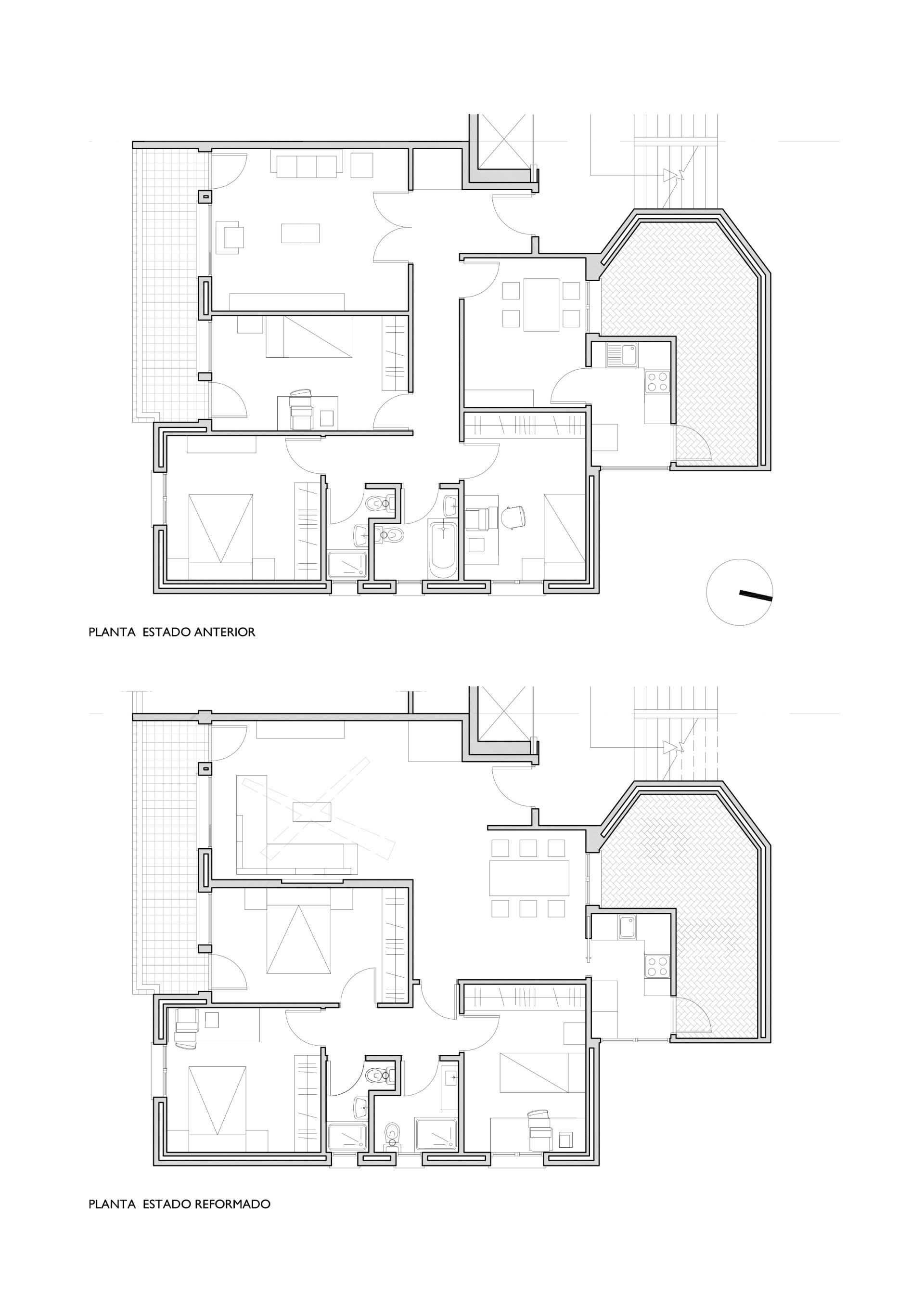
Reformas interiores - Arquitectura
Lugar: Allemendi 3, Zarautz
Promotor: Privado
Proyecto y dirección de obra: LMV Arkitektura